L'immobilier par les DOM pour les DOM

Espace pro

Local commercial à louer de 79 m2 à Saint-Claude - Idéal pour commerce de proximité

Annonce - Réf : 1891-C3

3
1 350 € / mois
Location Local commercial 97120
Local commercial à louer de 79 m2 à Saint-Claude - Idéal pour commerce de proximité
Local commercial à louer de 79 m2 à Saint-Claude - Idéal pour commerce de proximité
Honoraires à la charge du locataire : 2 170,00 €
Charges locataires : 95,00 €
Dépôt de garantie : 2 700,00 €
Descriptif
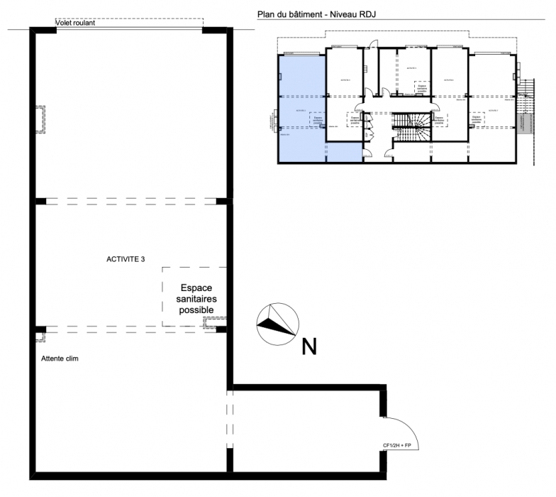
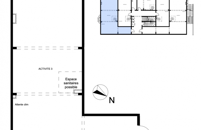
  • 79 m2

En plein cœur de Saint-Claude, face à la Mairie, nous vous proposons ce local commercial de 79 m2 à louer, situé au sein d'une petite résidence à taille humaine composée de 8 logements et 7 commerces.
Le local est livré brut, avec les attentes en eau et électricité, et est sécurisé par un volet roulant. Une belle opportunité pour toute activité commerciale.
Caractéristiques du bien :

Surface : 79 m2
Local livré brut avec attentes en eau et électricité
Fermé par un volet roulant
Disponible immédiatement
Emplacement idéal en face de la Mairie, au centre de Saint-Claude, proche de l'université
Parfait pour installer un commerce de proximité

Ce local bénéficie d'une excellente visibilité grâce à son emplacement stratégique dans un quartier dynamique, ce qui en fait un choix idéal pour un commerce de proximité.
Loyer HT : 1350 euros/mois
Charges locatives HT : 95 euros/mois
Pour plus d'informations ou pour organiser une visite, contactez-nous au xx-xx-xx-xx-xx.
Construction en : 2022
Taxe foncière : 0€
Construction en : 2022
Taxe foncière : 0€
Les informations sur les risques auxquels ce bien est exposé sont disponibles sur le site Géorisques : www.georisques.gouv.fr
Commercial en charge de cette annonce
SANCHEZ Nathalie
Afficher le numéro
Lui envoyer un email

Alias Immobilier

53 lot Agat Houellebourg sud 2 97122 BAIE-MAHAULT
Afficher le numéro
Fondée en 2011 par Nathalie SANCHEZ, ALIAS Immobilier reste une agence de proximité à taille humaine avec une équipe 100% féminine où la compétenc...
En savoir plus sur cette agence
Fondée en 2011 par Nathalie SANCHEZ, ALIAS Immobilier reste une agence de proximité à taille humaine avec une équipe 100% féminine où la compétence professionnelle est aussi importante que la relation humaine. Les clients finissent même parfois par devenir de véritables amis. Que ce soit à la vente, à l'achat ou à la location, une des conseillères spécialisées vous recevra directement à l'agence autour d'un bon café pour vous écouter, vous conseiller et évidemment vous accompagner ensuite dans votre projet de A à Z. Le concept de l'agence est avant tout de privilégier le contact parce que l'émotion dans l'immobilier est très souvent au coeur de vos projets (agrandissement de la famille, séparation, préparer sa retraite, laisser un patrimoine à ses enfants, etc...).
Réduire
Contact par Email
(champs obligatoires *)
Parlez nous de votre recherche (facultatif)
Agence Alias Immobilier Guadeloupe

Alias Immobilier

Afficher le numéro
Contact par Email
(champs obligatoires *)
Parlez nous de votre recherche (facultatif)
© 97immo.com - Toute reproduction textuelle ou graphique interdite