L'immobilier par les DOM pour les DOM

Espace pro

Vente Maison 98.00m² 4 pièces Les Trois Ilets

Annonce - Réf : 1330-CENTURY21FWI

6
405 000 €
Vente Maison 97229
Vente Maison 98.00m² 4 pièces Les Trois Ilets
Vente Maison 98.00m² 4 pièces Les Trois Ilets
Vente Maison 98.00m² 4 pièces Les Trois Ilets
Vente Maison 98.00m² 4 pièces Les Trois Ilets
Vente Maison 98.00m² 4 pièces Les Trois Ilets
Honoraires : à la charge du vendeur
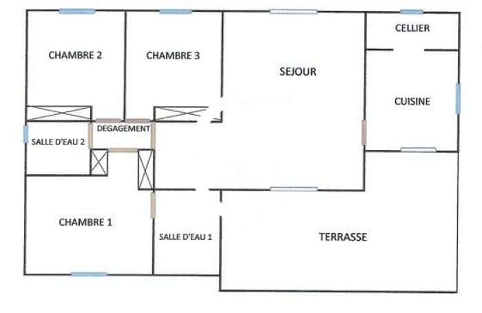
Descriptif
  • 4 Pièces

  • 3 Chambres

  • 2 Salles d'eau

  • 2 WC

  • 98.00 m2

  • Terrain : 663 m2

Villa T4 lumineuse de plain-pied – 98 m² + terrasse de 28 m²
Découvrez cette agréable villa de plain-pied construite en 2006, offrant 98 m² de surface habitable, idéale pour une famille ou pour un investissement locatif.
Dès l'entrée, vous serez séduit par un vaste séjour lumineux de 33 m², offrant un bel espace de vie convivial, parfait pour partager des moments en famille ou recevoir vos proches. La maison se compose de 4 pièces, dont 3 chambres confortables, adaptées à la vie familiale ou à l'accueil d'invités.
La villa dispose également de deux salles d'eau et deux WC, garantissant confort et praticité au quotidien.
La cuisine aménagée, fonctionnelle et conviviale, ravira les amateurs de cuisine et s'ouvre sur les espaces de vie.
À l'extérieur, profitez d'une spacieuse terrasse de 28 m², idéale pour les repas en plein air, les moments de détente ou les soirées entre amis.
Implantée sur un terrain plat de 663 m², la propriété offre un bel espace extérieur piscinable, laissant libre cours à vos projets d'aménagement.
Pour plus de confort, la villa bénéficie également de deux places de stationnement extérieures.
En bon état général et de bon standing, cette maison est prête à accueillir ses nouveaux propriétaires.
Située dans un environnement calme et agréable, la villa se trouve à 5 minutes en voiture des commerces et d'une école, facilitant votre quotidien.
Une belle opportunité à découvrir sans tarder.

Honoraires à la charge du vendeur. Dans une copropriété de 5 lots. Aucune procédure n'est en cours. Classe énergie E, Classe climat E Montant moyen estimé des dépenses annuelles d'énergie pour un usage standard, établi à partir des prix de l'énergie de l'année 2023 : entre 1800.00 et 2400.00 €. Les informations sur les risques auxquels ce bien est exposé sont disponibles sur le site Géorisques : georisques.gouv.fr.
Ce bien est situé dans une copropriété ne faisant l'objet d'aucune procédure en cours Nombre de lots : 5
Séjour : 33 m2
Construction en : 2006

Energie

A
B
C
D
E
F
G
247kWh/m².an

GES

A
B
C
D
E
F
G
56KgeqCO2/m².an
Séjour : 33 m2
Construction en : 2006

Energie

A
B
C
D
E
F
G
247kWh/m².an

GES

A
B
C
D
E
F
G
56KgeqCO2/m².an
Les informations sur les risques auxquels ce bien est exposé sont disponibles sur le site Géorisques : www.georisques.gouv.fr
Commercial en charge de cette annonce

Afficher le numéro
Lui envoyer un email

CENTURY 21 - Cirick

ZI La Lézarde BP 427 97292 Le Lamentin cedex 2
Afficher le numéro
Century 21 Cirick est à votre disposition pour vous apporter un conseil personnalisé et impartial pour toutes vos démarches d'achat ou de vente de ...
En savoir plus sur cette agence
Century 21 Cirick est à votre disposition pour vous apporter un conseil personnalisé et impartial pour toutes vos démarches d'achat ou de vente de bien immobilier. Pour ce faire, nous nous appuyons sur une étude approfondie de votre projet, mais aussi sur une analyse détaillée du marché local. Les prix de vente moyens aux taux de financement en vigueur, en passant par les montages fiscaux ou financiers envisageables, rien ne nous échappe !
Réduire
Century21.Cirick SC capital social de 901 000€ ZI la Lezarde 97232 le Lamentin Siret : 51796484700019 Activité de transaction sur immeubles et fonds de commerce Carte professionnelle n° CPI97212022000000001 délivrée par la CCI de la Martinique Médiateur : CMAP - Service Médiation de la consommation - 39 AV F.D. Roosevelt, 75008 Paris - http://cmap.fr/
Contact par Email
(champs obligatoires *)
Parlez nous de votre recherche (facultatif)
Agence CENTURY 21 - Cirick Martinique

CENTURY 21 - Cirick

Afficher le numéro
Contact par Email
(champs obligatoires *)
Parlez nous de votre recherche (facultatif)
© 97immo.com - Toute reproduction textuelle ou graphique interdite